Codice TROVIAMOCASA_APPART5 - VENDESI APPARTAMENTO A CATTOLICA
    🎯 VENDESI APPARTAMENTO A CATTOLICA (in zona Macanno)

    🔴 CLASSE ENERGETICA: A4

    🔴 CONSEGNA FINE 2026

    Inserito in un fabbricato di nuova costruzione residenziale con queste caratteristiche principali:

    ✅ NO gas, solo luce e induzione;
    ✅ pannelli fotovoltaici;
    ✅ riscaldamento pavimento;
    ✅ pompa di calore
    ✅ termocappotto esterno da 10 cm;
    ✅ tapparelle elettriche

    ✅ predisposizione per aria condizionata e zanzariere
    ✅ possibilita' di scegliere sia i pavimenti che i rivestimenti

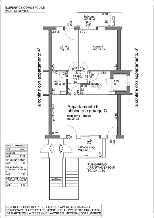
    L'appartamento è posto al piano primo (senza ascensore) ed è composto da:

    ✅ 2 camere da letto
    ✅ 1 bagno
    ✅ 1 lavanderia
    ✅ soggiorno con angolo cottura
    ✅ 2 balconi
    ✅ garage
    ✅ cantina


    MQ lordi appartamento: 72
    MQ balconi: 11
    MQ garage: 25
    MQ cantina: 10

    🔴 possibilita' di acquistare 1 posto auto scoperto esclusivo a 13.000 Euro

    🔴 RICHIESTA: 315.000 €

    ☎️Per maggiori informazioni chiamare: 0541/831413



    RIF. APPART5
    • Prezzo
      315.000 EUR
    • Classe
      A4
    • Locali
      3
    • Metri quadri
      100
    • Mq Box
      25
    • Mq Balcone
      11
    • Stato Immobile
      In Costruzione
    • Piano
      Primo
    • Totale Piani
      Due
    • Lati Liberi
      2
    • Giardino
      Privato
    • Arredi
      Non Arredato
    • Tipo Soggiorno
      Soggiorno
    • Tipo Cucina
      Angolo Cottura
    • Tipo Impianto
      Pavimento
    • Raffrescamento
      Predisposizione
    • Infissi
      PVC Doppio Vetro
    • Serramenti
      Nuovo
    • Persiana
      Tapparella PVC
    • Cantina - Solaio
      Cantina
    • Accesso Disabili
      Nessuna Barriera