Codice TROVIAMOCASA A305 - AFFITTASI APPARTAMENTO A GEMMANO
    🎯 AFFITTASI APPARTAMENTO A GEMMANO

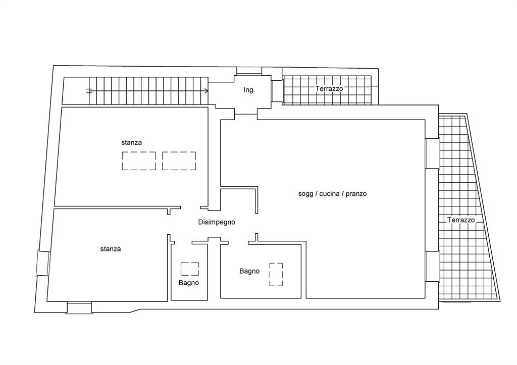
    Affittasi appartamento nuovo, arredato, al piano primo a Gemmano.
    Composto da:

    ✅ un open space di ampia metratura con cucina nuova e zona pranzo super luminosa
    ✅ 2 camere da letto matrimoniali
    ✅ 2 bagni
    ✅ 2 terrazzi dove poter pranzare/cenare
    ✅ 1 posto auto

    🛑 RICHIESTA: 750 € al mese
    🛑 Nessuna spesa condominiale
    🛑 Caratteristiche:
    fotovoltaico, colonnina ricarica, riscaldamento con pompa di calore ibrida
    (gas/elettrico), termosifoni (no riscaldamento a pavimento), aria condizionata,
    piano ad induzione.

    Si richiedono garanzie e assicurazione

    RIF. A305
    • Prezzo
      750 EUR / mese
    • Classe
      A1
    • Locali
      4
    • Metri quadri
      132
    • Stato Immobile
      Nuovo
    • Posizione
      Collina
    • Lati Liberi
      3
    • Giardino
      No
    • Arredi
      Arredato
    • Tipo Soggiorno
      Soggiorno
    • Tipo Cucina
      Angolo Cottura
    • Riscaldamento
      Autonomo
    • Tipo Riscaldam.
      Pompa di Calore
    • Tipo Impianto
      Termosifoni
    • Acqua Calda
      Autonoma
    • Raffrescamento
      Split
    • Infissi
      PVC Doppio Vetro
    • Serramenti
      Nuovo
    • Pavim. Giorno
      Ceramica
    • Pavim. Notte
      Ceramica
    • Pavim. Cucina
      Ceramica
    • Pavim. Bagno
      Ceramica
    • Cauzione
      Tre Mesi
    • Tipo Contratto
      4+4 Anni
    • Accesso Disabili
      Nessuna Barriera
    • Accesso interno disabili
      Non accessibile
    • Isolamento
      Presente
    • Isolamento termico
      Cappotto esterno
    • Isolamento acustico
      Nessuno
    • Destinato a residenti
      Si
    • VIA VERDI , Gemmano (RN)